Grundrisse für den eigenen Hausbau erstellen

unser roomle grundriss erdgeschoss
Startseite » Unser Haus » Eigener Hausbau » Grundrisse für den eigenen Hausbau erstellen

Es gibt bei einem Hausbau sehr viele schwierige Themen, die einen während der Bauphase begleiten. Ein sehr schweres Thema steht aber schon direkt zu Beginn an: Die Grundrisse.

Die meisten Bauherren haben vorher in einer Wohnung gelebt. Selbst wenn diese sehr groß ist, über viele Zimmer verfügt und total gut gefällt, lassen sich die Grundrisse der Wohnungen nicht auf das Haus übertragen. Deshalb gilt es, hier selber kreativ zu werden und den Grundriss zu planen. Doch wo anfangen und wo aufhören?

Vorgefertigte Grundrisse ansehen

Es gibt verschiedene Möglichkeiten, sich dem Thema zu nähern. Der einfachste Einstieg ist natürlich, die Kataloge der Bauträger durchzublättern, was wir zu Beginn auch gemacht haben. Diese enthalten in der Regel mehrere Haustypen und verschiedene Varianten der Grundrisse und dienen so als super Inspiration, auch wenn einem nicht alles gefällt. So könnten die dann aussehen:

Möglichkeit 1

hausbau grundrisse eg

hausbau grundrisse og

Möglichkeit 2

hausbau grundrisse eg

hausbau grundrisse og

Möglichkeit 3

hausbau grundrisse eg
hausbau grundrisse og

Hier hat man also schon mal eine gute Grundlage, um sich an das Thema heranzutasten. Aber mal ehrlich, findet Ihr die Grundrisse perfekt? Vermutlich nicht, irgendwas stört euch und das solltet Ihr ändern.

Grundrisse anderer Bauherren

Natürlich sind wir nicht die ersten gewesen, die das Thema hatten und Ihr werdet nicht die letzten sein, die sich damit beschäftigen. Also warum das Rad neu erfinden und nicht auf Ideen anderer Bauherren zurückgreifen. Es gibt im Internet eine Vielzahl an Baublogs und Bautagebüchern, wo oft auch die eigenen Grundrisse veröffentlicht wurden.

Eigene Grundrisse erstellen

Was immer sinnvoll ist: Schon mal eigene Grundrisse bzw. zumindest Ideen erstellen. Spielt einfach mal ein bisschen rum, probiert es aus und stellt ein paar Möbel. Das Außenmaß für euer Haus kennt Ihr ja vermutlich schon (grob), fangt einfach mal damit an und zeichnet dann die einzelnen Räume.

Aus eigener Erfahrung kann ich empfehlen: Gerade am Anfang nicht zu sehr darauf achten, ob die Wand jetzt 3m oder 3,20m breit ist: Einfach mal drauf los zeichen, um eine generelle Idee für die Grundrisse zu entwickeln. Wenn Ihr mal alle Räume drin habt, könnt ihr die Wände immer noch verändern.

Das Zeichnen dieser Grundrisse kann ich auf zwei Arten empfehlen, je nachdem, was für ein Typ Mensch ihr seid.

Es fällt vielen Menschen einfacher, die Grundidee auf Papier zu entwickeln. Wenn Ihr dazu gehört, schnappt euch einfach einen DIN A4 Zettel, malt drauf los und zieht Wände ein. Schneidet evtl. Möbelstücke wie Sofa, TV, Küche, etc. aus und legt diese in die einzelnen Räume, so bekommt man ein erstes Gefühl für die Größen und Stellmöglichkeiten der Möbel.

Raumplaner für den PC und Tablet / iPad

Darüber hinaus gibt es natürlich auch viele Programme für den PC oder das Tablet, auf denen man die Grundrisse digital erstellen kann.

Probiert mal die iPhone / iPad APP Roomle aus, damit haben wir rumgespielt. Die APP ist zwar ein bisschen gewöhnungsbedürftig in der Bedienung, bietet aber in der kostenfreien Version schon die Möglichkeit, sich die fertigen Grundrisse in 3D anzusehen. Ein wenig schade ist die geringe Auswahl an Möbeln, die aber nach eigenen Angaben des Herstellers immer mehr erweitert wird. Gerade zu Beginn aber wohl auch nicht dramatisch, ob da jetzt die Traumküche steht oder irgendeine andere, es geht ja primär um den Platzbedarf und ein erstes Gefühl für den Raum.

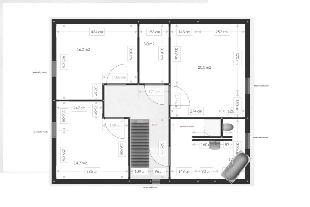
So sah unser Grundriss dann aus.

unser roomle grundriss erdgeschoss

unser roomle grundriss obergeschoss

Unser tatsächlicher Grundriss heute ist anders und auch die Maße stimmen natürlich nicht mit den tatsächlichen überein. Aber wie gesagt, es geht ja auch erst mal nur um eine grobe Idee. Mein Anspruch war es nicht, als Architekt durchzustarten 🙂 An der Badewanne erkennt man übrigens, was ich mit der geringen Möbelauswahl meinte. Eine Eckbadewanne gabs bei Roomle nicht 😉 Wobei wir diese Zeichnungen im Herbst 2014 gemacht haben, vielleicht gibt es sie ja mittlerweile.

Online Planer

Absolut empfehlenswert ist der Online Raumplaner RoomSketcher, mit dem man sehr detailliert die eigenen Vier Wände planen kann. Es gibt eine kostenfreie Version, mit der man allerdings nur eine 2D Zeichnung am PC erstellen kann. Wer eine 3D Zeichnung erstellen und die APPs für iOS und Android nutzen möchte, benötigt die Mietlizenz (ab 59,00€ im Jahr).

Für den PC ist dann als normale Software noch Sweet Home 3D zu empfehlen. Es gibt sicherlich noch einige mehr, einfach mal googeln.

Grundrisse beim Architekten des Bauträgers erstellen

Beim Planungsgespräch mit eurem Bauträger werden dann die offiziellen Grundriss-Entwürfe erstellt. Die können dann natürlich im Nachgang noch verändert werden, aber hier nimmt das Haus das erste Mal Form an. Ihr müsst vorher nicht zwingend eine Idee haben, wie diese Grundrisse aussehen, allerdings verlängert das dann die ganze Sache enorm. So ein Planungsgespräch dauert in der Regel 3-4 Stunden. Wenn Ihr vorher noch gar nicht wisst, wie eure Räume aussehen sollen, dann können daraus mit Sicherheit auch 6 oder 8 Stunden werden.

Deshalb empfiehlt es sich immer, vorher eine eigene Idee der Grundrisse zu entwickelt und diese mit zu dem Planungsgespräch zu nehmen. Wenn Ihr die Idee nämlich schon habt, geht es „nur noch“ um das Fine Tuning (Ist die Umsetzung der Grundrisse so möglich? Hauswirtschaftsraum zu klein? Wohin mit Ab- und Zuluft? etc.).

So war es dann auch bei uns. Wir sind mit unseren selbsterstellten Grundrissen zum Planungsgespräch und haben davon dann die echten abgeleitet. Unser Architekt hat dann noch auf Dinge hingewiesen, die nicht umsetzbar sind und natürlich Tipps gegeben, wie man optimieren kann. Unter anderem hatten wir den Hauswirtschaftsraum viel zu klein geplant, alle notwendigen Geräte passten hier gar nicht rein. Der Architekt beim Bauträger zeichnete, radierte, zeichnete und dann hatten wir es irgendwann. Am Ende waren wir sehr zufrieden.

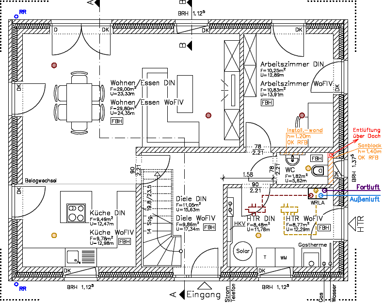
Und diese Grundrisse sind dann dabei herausgekommen:

unser finaler grundriss erdgeschoss

unser finaler grundriss obergeschoss

Stichpunkte zur Grundrissplanung

  • Planung Treppe (den Flur nicht zu eng kalkulieren)
  • Haus ohne Keller benötigt angemessen großen HWR für die technischen Geräte.
    Heizung, Wassertank, Wasserenthärtungsanlage, Lüftungsanlage, Sicherungskasten und ggf. Waschmaschinen-Anschluss. Und es soll noch Platz für Staubsauger, Bügelbrett, Leergut und Vorräte etc. bleiben. Das wird schnell eng…
  • Gäste WC (mit Dusche?)
  • Küche offen oder geschlossen? Offene Küche mit Fenster zu Lüften planen
  • Dunstabzug in der Regel nur Umluft (bei energieeffizienter Planung)
  • Bei Ofen oder Kamin den Schornstein einplanen (auch bei langfristiger Planung nicht vergessen)
  • Flur oben – Lichtquelle vorhanden? Zimmertüren werden vermutlich meist geschlossen sein, ggf. Dachfenster einplanen.
  • Beim Dachfenster beachten: Wechsel? Erreichbar zum Reinigen? Öffnung ohne Leiter erreichbar?
  • Dachboden: Falls Ausbau angedacht oder sogar geplant, Fenster mit einplanen
  • Badezimmer: Eckbadewanne? Gemauerte Dusche (mit Ablagefach)?
  • Fenster: Auch von außen symmetrisch?
  • Bodentiefe Elemente: französischer Balkon oder lieber zweigeteilt?
  • Wo soll die Terasse langlaufen?
  • Welche Zimmer sollen Sonnenlicht erhalten, welche gehen nach Norden raus?
  • Ausrichtung Haus für Photovoltaikanlage oder Solarzelle
  • Planung Esstisch
  • Planung Wohnwand, Sofa
  • Parkfläche für das Auto einplanen

Euer Vorgehen

Habt Ihr schon Grundrisse? Wie seid Ihr bei der Erstellung vorgegangen? Habt Ihr weitere Tipps?Merken

7 Gedanken zu „Grundrisse für den eigenen Hausbau erstellen“

  1. Hallo und danke für den Beitrag. Ein Neu ist keine einfache Sache. Man muss bei der Planung sehr vieles Berücksichtigen, damit man im nachhinein nichts bereut. Dazu sollte man sich immer auf eine gute Beratung stützen.

    Antworten
  2. Vielen Dank für einen interessanten Beitrag. Wir haben gerade ein Grundstück gekauft und sind jetzt in der Planungsphase. Ein guter Tipp ist, eigene Grundrisse zu erstellen. Wir werden uns an ein Fachbüro wenden, aber es ist wirklich sinnvoll, zuerst eine generelle Idee für die Grundrisse zu entwickeln.

    Antworten
    • Hallo Heike,

      genau darum geht es: Eine generelle Idee entwickeln. Das die dann vom Fachbüro erstellt werden, ist ja klar. Aber es hilft, vorher eigene Ideen entwickelt zu haben, schließlich trifft man beim Architekten wirklich langfristige und kaum noch änderbare Entscheidungen.

      Viel Erfolg beim Bau!

      Gruß, Christian

      Antworten
  3. Vielen Dank für den Beitrag zum Thema Grundrisse beim Hausbau. Mein Onkel bespricht seinen Grundriss nächste Woche mit dem Bauunternehmen, um sicherzugehen, dass alle Arbeiten erledigt werden können.

    Antworten
  4. Ich habe mich auch von den Grundrissen anderer Bauherren inspirieren lassen. Wir wollen das Haus in Wunstorf nach Wunsch bauen. Der Grundriss soll nicht von der Stange sein, aber funktional.

    Antworten
  5. Ich finde den 3. Grundriss sehr schön. Wir schauen uns gerade nach Grundrissen und Bauunternehmen für Einfamilienhäuser um. Wir haben ein Grundstück im Pinzgau geerbt und möchten gerne übersiedeln.

    Antworten

Schreibe einen Kommentar